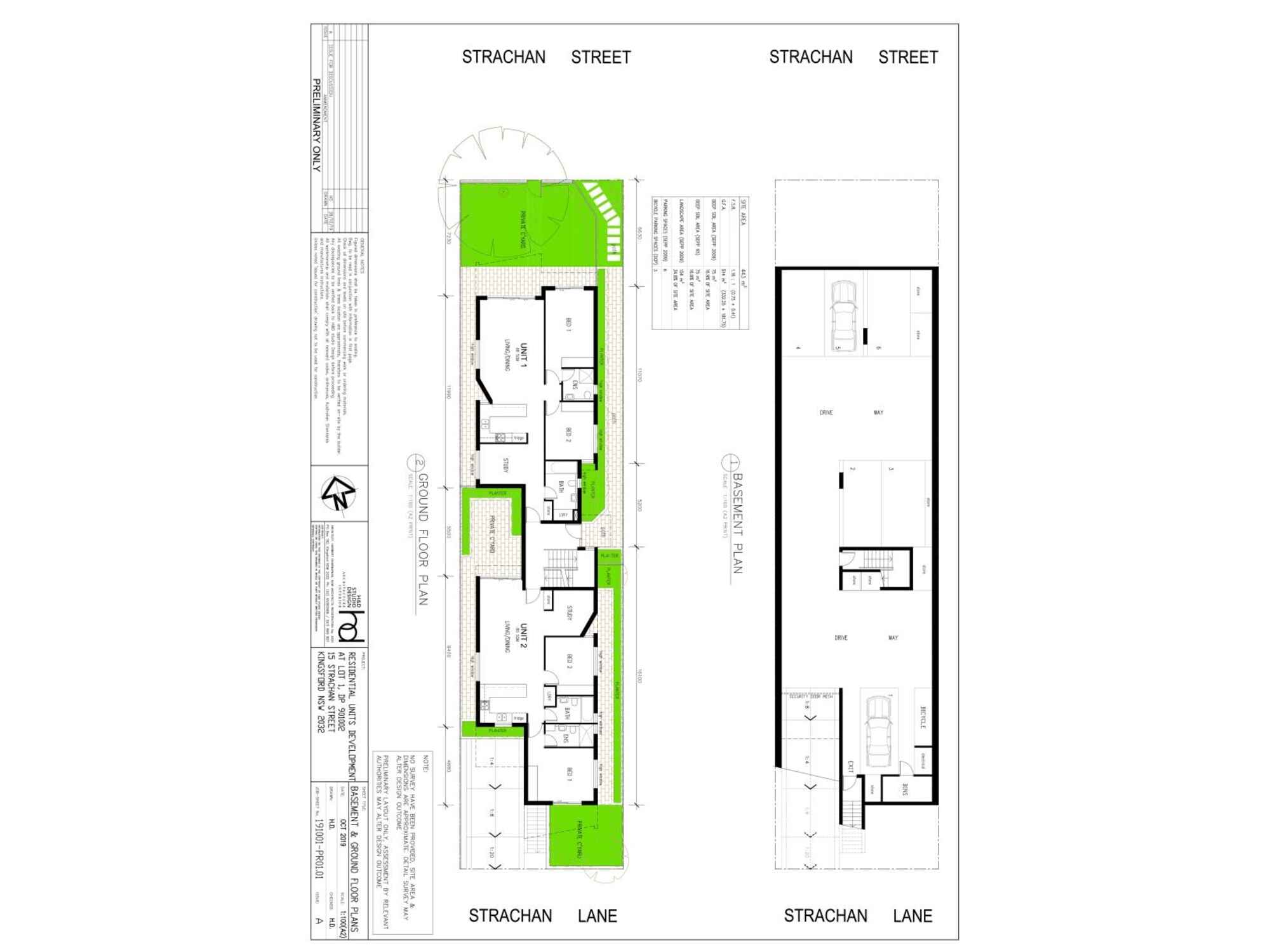
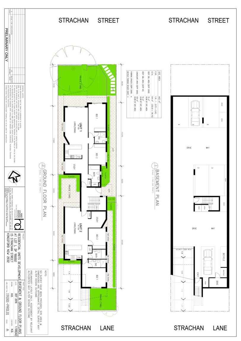
Property Details
Nestled in a quiet surrounding, this family home enjoys two street frontages, offering multiple opportunities to renovate to taste, build your new dream home, or multiple dwellings (STCA) due to its R3 Zoning.
- Level block with bright northern aspect
- Generous lounge and dining
- Large renovated modern kitchen
- Swimming pool with easy care paved courtyard
- Lock up garage and storage area
- Total land area approx. 443m2
Conveniently located just a short stroll to Kingsford Junction, you can enjoy its newly soon to be minted Light rail station, direct bus services to the City and the beautiful Eastern beaches. Also a short distance to UNSW and Prince of Wales Hospital.
Disclaimer: All information contained herein is gathered from sources we believe reliable. We have no reason to doubt its accuracy, however we cannot guarantee it. All interested parties should make and rely upon their own enquiries.
For further assistance, please direct enquiries to Hendra Wijaya on 0414 598 865 (hendra@rwmaroubra.com.au).
For more listing, please check our website on www.rwmaroubra.com.au
Land area
443 sqm (approx)


























